- 13 July update: Click here for details of the new Sherington Community Shop Committee (ShopCo).
- 19 June update: About 120 villagers attended the meeting on 19 June to discuss the proposed new community shop. Despite a number of objections relating to the siting of the shop and its viability, a committee is being formed to take the project forward and a number of volunteers came forward to take part. The construction of the shop will cost around £300k. The Parish Council suggested that the weekly turnover might be around £8k, although the Virginia House Stores only managed £5k. The annual profit might be £17k, although the Council stated nothing could be guaranteed.
- On September 5th 2009 over 140 residents gathered in the Village Hall to ascertain if there was a desire to replace the imminent closure of Virginia House Stores with a new venture.
- After much positive and constructive discussion the outcome was a definitive “Yes” to create a new shop and post office.
- Resulting from this wish the Parish Council undertook to locate a suitable site, to apply for planning permission and also to produce a business plan and overall costings relevant to the project.
- This information is now available hence we have organised another gathering of all Sherington residents to be held on Saturday 19th June 2010 from 10.30 am to 12 noon at the Village Hall, Church Road, at which time all the supporting documents will be available for discussion. Ian Toye from The Plunkett Foundation will be in attendance to offer information and advice on community owned rural shops.
- Please come along as it is you, the Sherington residents who will decide whether the project goes ahead or not. Should the decision be positive then it will be incumbent upon you to form a Project Committee to take the project from concept to completion, this will then become the main objective of the gathering.
- This will be a very important gathering to discuss the village facilities so please accept this opportunity to take part. We look forward to seeing you on Saturday 19th June.
Latest news: Planning permission was granted by the MKC Planning Committee on 27 May 2010
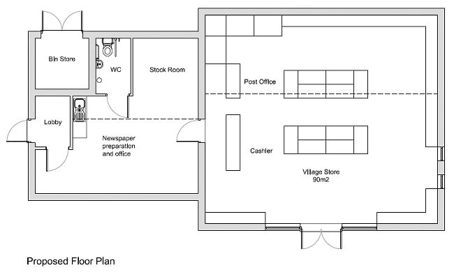
New Village Shop - Revised Plans
- The Parish Council has revised the plans for the new Village Shop and has submitted a new Planning Application to Milton Keynes Council.
- The building is smaller, as it no longer includes a Cafe. The roofline is 6 inches lower. The building is closer to Church Road. The shop is now at the Church Road end of the building, with the store room at the rear. A delivery bay is located at the rear. The car park is larger, with 22 spaces.
- The planning application is now being advertised by Milton Keynes Council and adjacent residents notified under MKC standard consultation procedures. The application can also be viewed online – see below for details. Anyone has the right to submit comments to MKC on the application. These can also be submitted to MKC online.
- The Parish Council welcomes any comments you may have: these should be sent in writing only please to Wendy Austyn – Clerk to Sherington Parish Council at 12 Carters Close Sherington or [email protected].
Planning Application Details
- MKC Planning Reference: 10/00490/FUL
- Received: 11/03/2010, Validated: 23/03/2010, Expiry date for neighbour consultations: 03/05/2010
- Committee date: 27/05/2010
- Milton Keynes Council Planning Public Access:
- Application documents: (Copy of PDF documents as at 22/05/2010)
- Public comments: (Copy of PDF documents published by MKC up to 22/05/2010)
- These documents are a copy of those made available by MKC on their website up to 22 May 2010 and they have also been made available here for convenience. For the latest information and any updates please consult the MKC website directly. In case of difficulty in accessing the direct link to this planning application, use one of the following and the search facility:
Click here for details of the Original Planning Application 10/00018/FUL
|
|
|